Обратно към имоти



АпартаментПродава
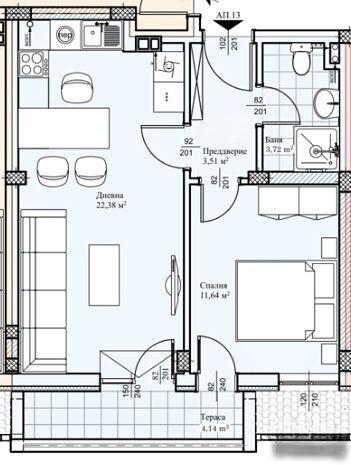
Двустаен апартамент НОВО СТРОИТЕЛСТВО - кв. Прослав
Пловдив
69 600 €
2 Стаи
1 Бани
58 м²
Описание
ОБЯВА № 143159 | Предложение от Deluxe Homes | Двустаен апартамент в нова сграда, подходящ за лично ползване или инвестиция в кв. Прослав. | Разпределение: антре, дневна с трапезария и кухненски бокс, спалня, баня с WC и тераса. | Възможност за закупуване на парко място или гараж.
Характеристики
В строежТухлаЕл. отоплениеАсансьорТерасаНово строителство
